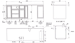
Столешница БСВ 1690х700х40 борт+мойка 400х400х250+отв. 200х200 для кофеотходов Уточнить стоимостьу менеджера
Лента светодиодная RTW-5000PWT 24V для витрин БСВ ( RTW-2835-180 термостойкая ) Уточнить стоимостьу менеджера