Рукомойники или ванны для мытья рук предназначены для мытья рук персоналом в кухонных цехах заведений общественного питания,
в...
Рукомойники или ванны для мытья рук предназначены для мытья рук персоналом в кухонных цехах заведений общественного питания,
в пищеблоках детских и медицинских учреждений, а также в производственных помещениях предприятий пищевой промышленности.
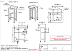
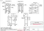
Существуют два вида рукомойников по способу крепления и установки в помещении. Настенные или консольные ванны или для мытья рук крепятся к влагоустойчивым поверхностям при помощи шурупов. Рукомойник консольный позволяет устанавливать его на удобной для персонала высоте. Эти рукомойники используются в производственных и моечных отделениях предприятий общественного питания, а также в передвижных киосках-тонерах для мытья рук.
Напольные модели для придания им большей устойчивости также рекомендуется крепить к стене. Опорные ножки таких рукомойников регулируются по высоте в пределах 20 мм и изготавливаются из нержавеющей стали с пластиковой подложкой внизу для предотвращения повреждения пола.
Все ванны для мытья рук имеют корпус из высококачественной нержавеющей стали, способной сохранять свои эксплуатационные качества в течение многих лет. Специальный бортик предохраняет стены от попадания брызг, а защитная сетка, которой оснащены некоторые модели рукомойников, и нержавеющий выпуск – предотвращают попадание мелких предметов в сливную трубу.